Modular Homes
3 Years Warranty
Modular Expandable Living
Built by registered professionals for quality, safety, and long-term value.

What Is a Containable Luxury Modular Home?
A Containable Luxury Modular Home is a factory-built residence, designed in Australia and constructed in a controlled environment before being delivered to your site for final installation. Unlike temporary or relocatable buildings, Containable Luxury homes are built for permanent living. They provide a modern alternative to traditional construction while ensuring strength, durability, and long-term reliability.
Every Containable Luxury modular home is built with quality materials and proven techniques. Factory construction ensures better control, faster timelines, and consistent results. Completed modules are transported and installed on-site, minimising disruption and weather delays.
Designed for Permanent Residential Living
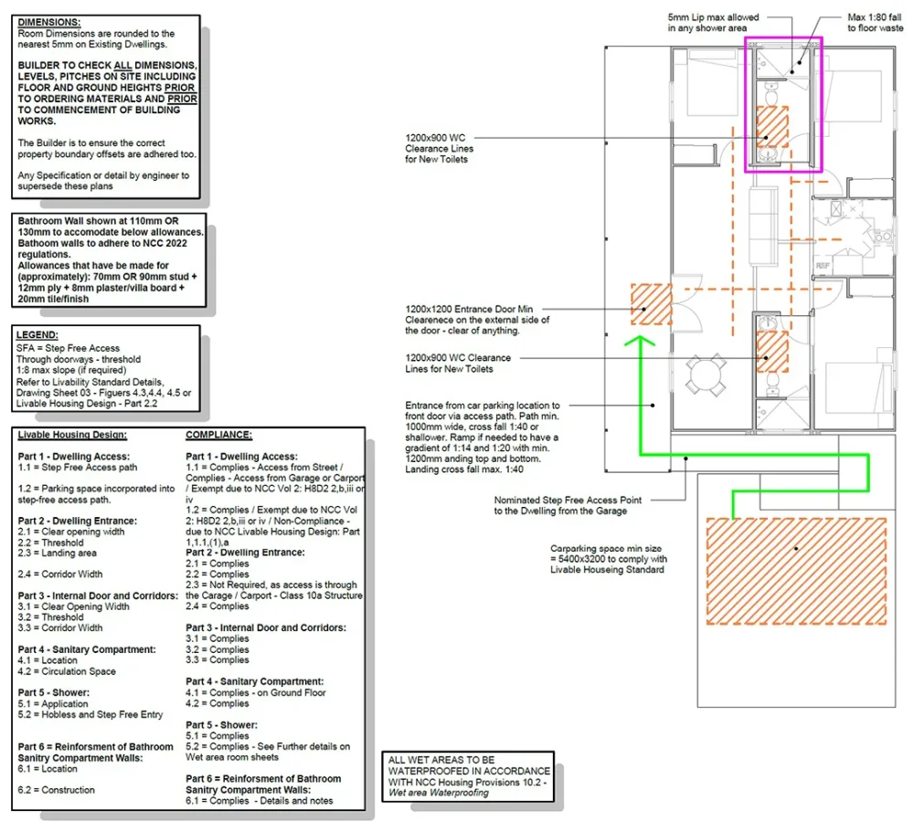
Containable Luxury Modular Homes are thoughtfully designed to align with Class 1a residential classification requirements, making them suitable for permanent living where approvals are granted. This classification generally applies to detached homes, secondary dwellings, and similar residential buildings under the National Construction Code (NCC).
Unlike temporary structures or caravan-style accommodation, Containable Luxury homes are built to satisfy the structural, safety, and performance standards expected of permanent residences. This includes meeting requirements for structural strength, weather protection, energy efficiency, and long-term habitation.


Approval Pathways & Compliance
All building approvals in Australia follow local planning schemes, state laws, and the National Construction Code. Approval for a Containable Luxury Modular Home depends on land zoning, site conditions, intended use, and council regulations.
These homes are designed to meet approval pathways for Class 1a dwellings, including primary residences, secondary dwellings (granny flats), and detached accommodation. Projects may require planning and building approvals, engineering documentation, and certification by qualified professionals.
No modular home is universally pre-approved; approvals are site-specific. Buyers should check local requirements early and seek professional advice before proceeding.
Design Options & Configurations
The Containable Luxury Modular Homes range offers a variety of layouts, sizes, and architectural styles to suit different needs. Models typically include one- to three-plus bedroom configurations.
Buyers can select from multiple roof types and exterior finishes to tailor each home to its site and purpose. Whether for permanent living, a granny flat, holiday home, or BNB, these homes are functional, adaptable, and visually appealing.
Interior designs focus on efficient space use, natural light, and modern living, while exterior finishes can align with local environments and council requirements. Customisation options vary by model and project.

Meet The Builder
My name is Bosko Stojanovski
I am a registered building practitioner (Registration number DB-U 73403) from Keilor, Melbourne, Victoria.
I have been practicing building and construction since 1999. I started managing my own construction business in 2008 and am constantly curious and innovative towards next generation sustainable living. With a strong and extensive background in residential and domestic building, I have started a venture that operates as a business, but also serves the community and geography – which is affordable, functional and energy effective sustainable living solution.
Our luxury container homes are designed as a turn key package including all the bells and whistles one could ask for.
Our Container homes are cost-effective, superior quality, 10 years warranty policy plus much much more aims to make sustainable living affordable.
- 0415 308 765
- contact@containableluxury.com.au
- 13 Gardiner Lane, Truganina Melbourne, Victoria 3029

Explore Our Home Insights
FAQ's
We understand that going ‘tiny’ can feel quite daunting, but we are here to help answer any questions you may have. Take a look at our FAQ’s listed below and feel free to email us, if you have any more contact@
Containable Luxury is a family-owned and operated company with outlets nationwide. We have implemented waterproofing measures that many others don’t offer. As standard, we install a full one-piece fibreglass sheet over the side roofs, a 3mm steel sheet over the main pod, and specially designed Z flashings around the bottom of the external walls. We also use aluminium window frames and Z flashings for the roof step. Best of all, we remain highly competitive with our pricing.
All of our current and available units are displayed on our designs page.
All of our current display villages are listed on our contacts page page.
For our standard range, we only require a 10% deposit. If you would like to make any changes to your Containable Luxury Relocatable Home or purchase one of our custom ranges, we require a 50% deposit. Please note that each store may have a different deposit structure.
Absolutely! We can tailor any of our standard plans to your design preferences and budget for both Hideaway Cottage & Lakeview Cabin. Find out how you can personalize your space in our blog about why container homes are your next big move.
Containable Luxury provides guidance and support throughout the council approval process; however, approval requirements vary depending on your location and intended use.
In some cases, a Containable Luxury relocatable building may be classified as a caravan, which can mean council approval is not required. That said, planning rules are interpreted differently by each local council, so it is always important to confirm requirements directly with your local authority.
In New South Wales (NSW), state legislation allows the permanent occupation of caravans for family members under specific conditions. Other states also offer pathways:
VIC (Victoria): Caravans may be recognised as Dependent Person’s Units where eligibility criteria are met.
NT (Northern Territory): Generally has more flexible arrangements regarding caravan living.
QLD (Queensland), NT, and SA (South Australia): May allow caravan occupancy through permit-based approval processes.
In many cases, councils will approve caravan-style dwellings where the appropriate permits are obtained. Containable Luxury can assist in guiding you through the relevant steps, but buyers are encouraged to verify local planning requirements and ensure compliance with applicable state and council legislation before proceeding.
We do not offer installation services directly; however, all units are supplied with a comprehensive installation manual. Every Containable Luxury display village also maintains a ‘trade board’ with details of third-party contractors who specialise in the setup of our products.
- The installation/set up. Depending on the model you buy there are different items you will need to install/set up
- A plumber to connect to sewer mains, septic or grey water tank
- A/C if required
- Supply and installation of HWS. If using a gas system you will need the gas certified by a licensed plumber/gas fitter
- Cooking appliances
From ground level to the under side of our standard trailer is about 500mm. The trailer chassis is 150mm thick.
When on a trailer, our cabins are technically a caravan, and as long as you comply with your relevant State/local Legislation you can occupy the caravan without the need for prior council approval. Different states have different legislation.
Electrical components are all SAA/Global Mark certified – in compliance with Australian Standards. Plumbing components are all Watermark certified – in compliance with Australian Standards. Our trailers are manufactured to the Australian Design Rules and the VSB1.
We offer a range of ‘off grid’ solutions. Visit our Accessories Page
Yes, we can organise delivery Australia-wide through our network of outlets and national freight carriers. The majority of our drivers operate ‘tilt tray’ trucks, which means that provided the truck can fit and can traverse the ground on-site (without damage or risk of ‘bogging’), we can usually unload exactly where required. This typically avoids unnecessary costs such as forklifts, cranes etc being needed to unload.
Your power supply can be connected using a 15-amp extension lead, and water can be as simple as connecting a garden hose—similar to a traditional caravan setup.
Yes, you can connect a gas hot water system, heaters, and cooking appliances in a Containable Luxury moveable dwelling. All LPG installations must comply with the requirements of the Code Governing the Installation of LPG Equipment and Appliances and with AS/NZS 5601.1:2013 – Gas Installations.
Due to a Containable Luxury moveable dwelling having a compact living area, being constructed from steel, and being well insulated, condensation can sometimes form inside the unit under certain climates or conditions. If this occurs, you can consider installing a vent, using damp-aid products, or operating a dehumidifier to manage moisture.
Due to being a registrable caravan, Containable Luxury units/caravans can be set up in fire zones and flood zones. We recommend that you conduct your own research to ensure that a Containable Luxury unit/caravan is suitable for your area and that you are confident in packing up your dwelling quickly if necessary.
All Containable Luxury units come with a 3 Years warranty, in addition to any guarantees that cannot be excluded under the Australian Consumer Law. There is no time limit to register your warranty, and we do not require photos of your dwelling setup.
Our warranty even covers the cost of removal or disconnection of services, as well as the replacement or reconnection of all services, fixings, and fittings.
Containable Luxury works closely with affiliated factories to ensure the highest quality in every unit. As with any bulk manufacturing process, occasional issues can occur. This is why, unlike other suppliers, every Containable Luxury cabin undergoes a final pre-delivery inspection at your local display store prior to delivery. This ensures there are no unexpected issues when your cabin arrives and eliminates the need for long, complicated warranty forms.
Why Choose Us ?
Why choose us
Direct contact with builder and manufacturer no sales agents
- Containable Luxury is an Australian-owned and operated company that offers luxurious container cabins and homes.
- Our 10-year structural warranty on top of a 3-year product and appliance warranty enhances your peace of mind.
- We offer unbeatable prices and will beat any formal written quotation by 10%. Glowing reviews from satisfied homeowners testify for our success.
- Building a shipping container cabin and home in Australia is becoming increasingly popular due to its affordability and sustainability.
